合肥星海城
买房交流群-157群(2)
- 楼盘区域: 安徽 合肥市 包河区
- 项目地址: 马鞍山路与南二环路交口
- 参考价格: 8000元/平方米
- 参考总价: 45万
- 预售许可证:
- 物业类型: 住宅
- 楼盘状态 在售
- 开发商: 安徽星海房地产发展有限公司
更多
交通配套
订阅楼盘最新动态,优惠、开盘早知道
本楼盘交流群
252人正在讨论
加入楼盘交流群,楼盘优劣全知道
楼盘资讯
星海城
均价
8000元/㎡
降价通知
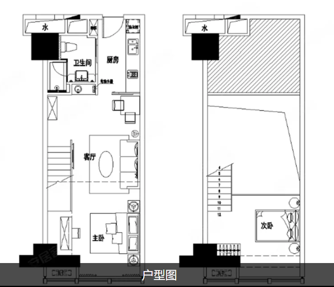
户型
一居
余房查询
地址
安徽 合肥市 包河区马鞍山路与南二环路交口
发地址到手机
咨询底价
组团砍价
加入买房群
猜你喜欢
楼盘概述:
合肥星海城
